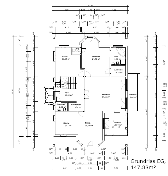
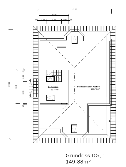
Bungalow CASINO ROYAL

 




zurück zur Hausübersicht


 
Home 4 Ever Ltd. | Ewald Schmitz | Kardinal-Galen-Str. 19 | 47652 Weeze | Tel.: +49 (0) 2837-66 45 15 und 49 (0)151-58 556 452